t1.kakaocdn.net/mapjsapi/bundle/postcode/prod/postcode.v2.js
다주방
키친리더
페이스북
즐겨찾기
로그인
회원가입
장바구니
0
마이페이지
주문/배송조회
고객센터
실시간 주문현황 :
김**(gue**) 님 신용카드 확인되었습니다.
이**(com********) 님 온라인입금 확인되었습니다.
석**(ssn*****) 님 신용카드 확인되었습니다.
장**(gue**) 님 신용카드 확인되었습니다.
풍****(gue**) 님 신용카드 확인되었습니다.
브*********(gue**) 님 신용카드 확인되었습니다.
주***(gue**) 님 온라인입금 확인되었습니다.
신**(god****) 님 신용카드 확인되었습니다.
남**(nth****) 님 신용카드 확인되었습니다.
강**(rkd******) 님 신용카드 확인되었습니다.
김**(gue**) 님 신용카드 확인되었습니다.
박**(gue**) 님 신용카드 확인되었습니다.
최**(csw****) 님 신용카드 확인되었습니다.
주**(whs*****) 님 온라인입금 확인되었습니다.
강**(gue**) 님 가상계좌 확인되었습니다.
유**(gue**) 님 가상계좌 확인되었습니다.
문**(m90****) 님 신용카드 확인되었습니다.
문**(m90****) 님 신용카드 확인되었습니다.
김**(gue**) 님 신용카드 확인되었습니다.
김**(Ejr*********) 님 신용카드 확인되었습니다.
더보기
신제품
주문제작품
중고상품
견적의뢰
주방도면
납품실적
창업정보
매장보기
주방뱅크 소개
전체 카테고리 보기
더보기
닫기
프리미엄 배너광고
Prev
Next
주방도면
총게시물 :
1045
건
|
5
/ 70 페이지
전체보기
관공서
병원요양원
해외
유치원/어린이집
회사/구내식당
뷔페/호텔/웨딩
종교시설
리조트/펜션/콘도
학교/요리학원
한식
중식
일식
퓨전/양식/카페
고기집
호프/바
분식집
기타
게시판 목록
글번호
제목
구분
글쓴이
등록일
조회수
공지
[주방의참견] 주방뱅크 유튜브 공식채널
주방뱅크
2025.09.30
20547
공지
[다주방] 업소용 중고 주방용품 전문
주방뱅크
2020.03.10
105681
공지
[키친리더] 국내 외식산업을 선도하는 최고의 주방컨설팅 전문기업
주방뱅크
2020.03.10
92530
공지
[배너광고/배너교환] 주방뱅크와 함께 할 윈-윈 Biz 파트너 모집
주방뱅크
2013.01.16
112936
공지
외식업창업 준비중인데 막막하시다구요?
주방뱅크
2012.04.04
125001
985
[대게 전문점]주방도면/주방설비내역
한식
주방뱅크
2023.09.22
3894
984
[돈까스 전문점]주방도면/주방설비내역
일식
주방뱅크
2023.09.21
3597
983
[커피 전문점]주방도면/주방설비내역
퓨전/양식/카페
주방뱅크
2023.09.11
4210
982
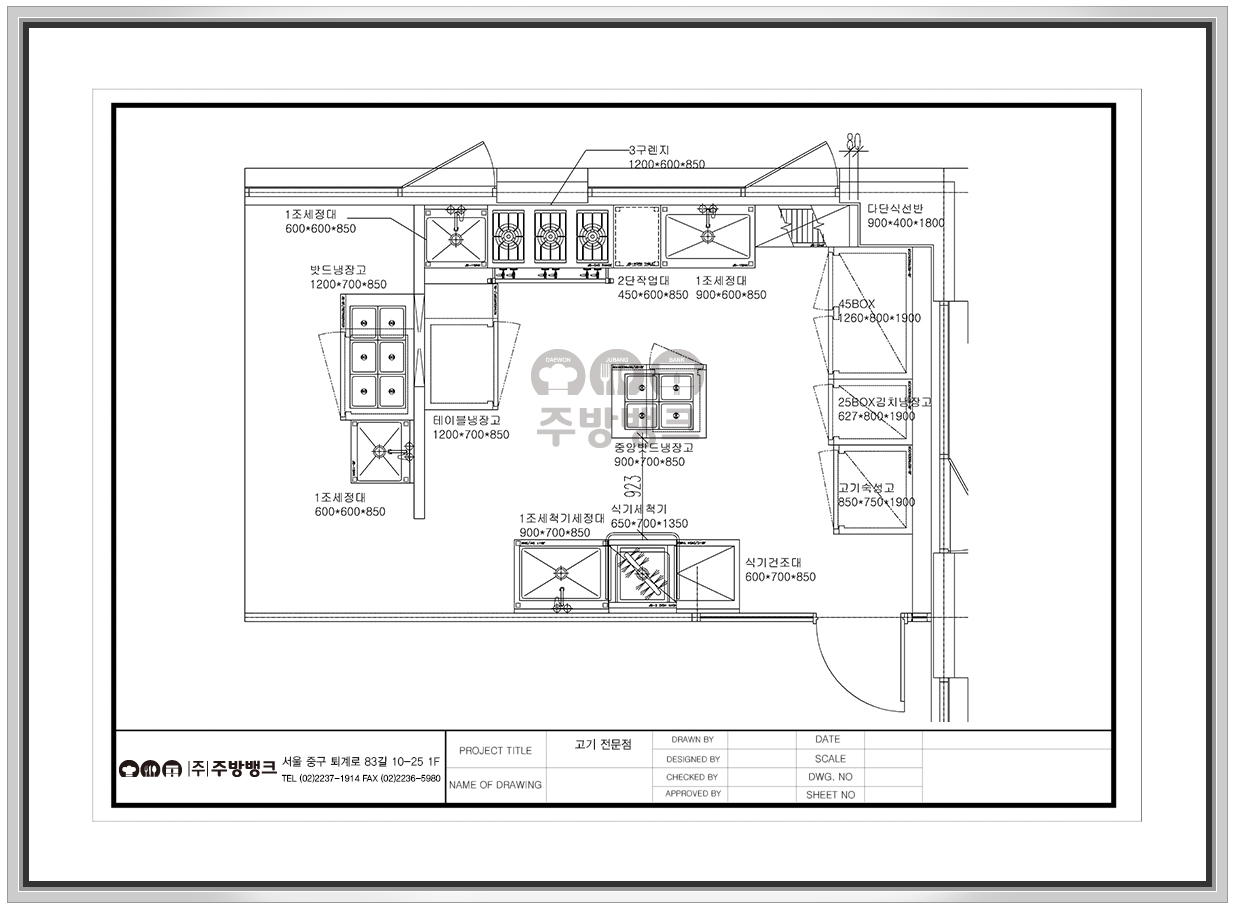
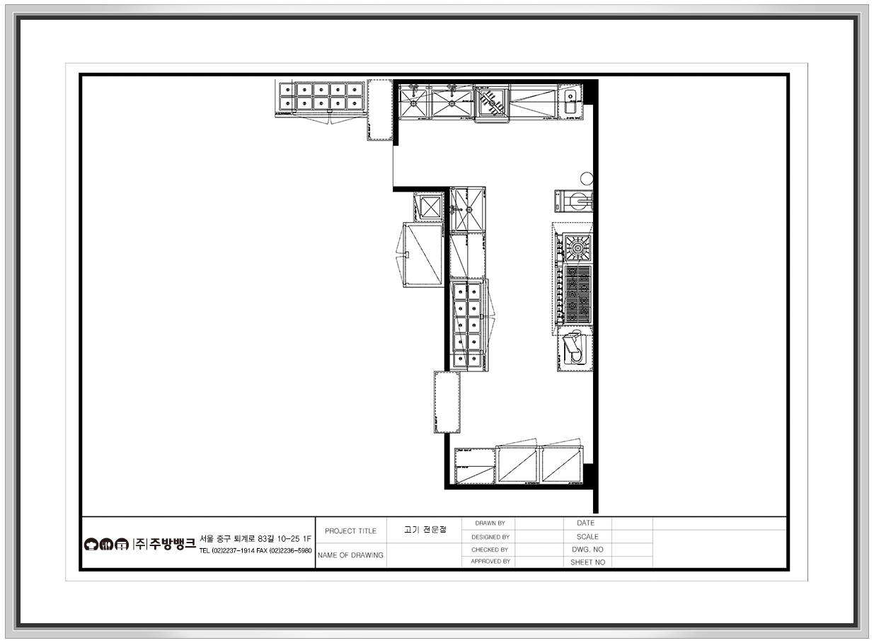
[고기 전문점]주방도면/주방설비내역
한식
주방뱅크
2023.09.08
4306
981
[중식 전문점]주방도면/주방설비내역
중식
주방뱅크
2023.09.06
4790
980
[탕후루 전문점]주방도면/주방설비내역
중식
주방뱅크
2023.08.30
3379
979
[돈까스 전문점]주방도면/주방설비내역
일식
주방뱅크
2023.08.22
3616
978
[고기 전문점]주방도면/주방설비내역
한식
주방뱅크
2023.08.18
4235
977
[소고기 전문점]주방도면/주방설비내역
한식
주방뱅크
2023.08.14
4093
976
[닭꼬치 전문점]주방도면/주방설비내역
한식
주방뱅크
2023.08.08
4074
975
[베이글 전문점]주방도면/주방설비내역
퓨전/양식/카페
주방뱅크
2023.07.26
4509
974
[이자카야 전문점]주방도면/주방설비내역
호프/바
주방뱅크
2023.07.18
4241
973
[피자 전문점]주방도면/주방설비내역
퓨전/양식/카페
주방뱅크
2023.07.11
4172
972
[브런치 전문점]주방도면/주방설비내역
퓨전/양식/카페
주방뱅크
2023.07.04
4568
971
[칼국수 전문점]주방도면/주방설비내역
한식
주방뱅크
2023.06.29
4540
1
2
3
4
5
6
7
8
9
10
게시물 검색
제목
글쓴이
내용
무료창업상담
관공서후불제
해외납품전문
특별할인안내
매장지도
문자받기
주방뱅크 매장 지도 - 문자받기
-
-
무료전송
제 1 조 (목적) 이 약관은 (주)주방뱅크(이하 “쇼핑몰”)가 제공하는 매장주소 및 찾아오는 지도 문자메시지 서비스의 이용과 관련하여 쇼핑몰이 고객과의 권리, 의무 및 책임사항, 기타 필요한 사항을 규정함을 목적으로 합니다. 제 2 조 (정의) 이 약관에서 사용하는 용어의 의미는 다음과 같습니다. 1. ‘문자메시지 서비스’라 함은 쇼핑몰이 제휴한 문자중계사업자의 시스템을 통하여 웹에서 이용자가 지정한 휴대전화로 문자를 보낼 수 있도록 제공하는 서비스를 의미합니다. 2. ‘고객’이라 함은 쇼핑몰에 방문하여 쇼핑몰 문자메시지 서비스를 이용하는 방문객을 의미합니다. 제 3 조 (약관의 게시와 개정) ① 쇼핑몰은 이 약관의 내용을 고객이 쉽게 알 수 있도록 문자메시지 서비스의 화면 내 또는 별도의 연결화면에 게시합니다. ② 쇼핑몰은 약관의규제에관한법률, 전기통신사업법, 정보통신망이용촉진및정보보호등에관한법률 등 관련법을 위배하지 않는 범위에서 이 약관을 개정할 수 있습니다. ③ 회사가 이 약관을 개정할 경우에는 적용일자 및 개정사유를 명시하여 제 1항의 방식에 따라 그 개정약관을 적용일자 7일 전부터 적용일자 전일까지 공지합니다. 다만, 고객에게 불리한 약관의 개정의 경우에는 적용일자 30일 이전에 공지하며 공지합니다. ④ 고객이 개정약관의 내용에 동의하지 않는 경우 쇼핑몰은 해당 고객에 대하여 개정약관의 내용을 적용할 수 없으며, 이 경우 고객은 이용 할 수 없습니다. 제 4 조 (문자메시지) ① 고객은 문자메시지 서비스를 이용하기 위하여 발신번호로 사용하고자 하는 전화번호를 사전 등록하여야 하며, 등록하지 않은 경우 문자메시지 서비스를 이용할 수 없습니다. ② 고객이 본인 명의의 휴대전호번호를 기재후 문자서비스를 사용할수 있습니다.. ④ 쇼핑몰은 서비스 관련 설비의 여유가 없거나, 기술상 또는 업무상 문제가 있는 경우 문자메세지 서비스 중지 할수 있습니다. ⑤ 고객은 제2항에 따라 기재한 전화번호로만 문자메시지를 발송할 수 있으며, 발신번호를 임의로 변경할 수 없습니다.
해당 내용에 동의합니다.
매장견학
프로그램
입금계좌
입금계좌번호 안내
개인결제
상품권 구매
상품권 등록
최근 본 상품
Close
Page up
Page down